La Grande Mont Kiara / Wedgewood residences mont' kiara ⭐ , malaysia, kuala lumpur, la grande kiara:

La Grande Mont Kiara / Wedgewood residences mont' kiara ⭐ , malaysia, kuala lumpur, la grande kiara:. You can also find a wide. Boka rum på wedgewood residences mont' kiara redan idag, genom knappen nedan. Free cancellationreserve now, pay when you stay. La grande kiara is a freehold apartment located in mont kiara, kuala lumpur. Mont kiara (3) villa crystal (1) villa mont kiara (1) vista kiara (9) vogue suites one (1) vortex klcc (5) waldorf hartamas (1) waldorf tower hartamas (1) westside one@dpc (1) windsor hartamas (2) windsor tower (6) ynio residence (0).

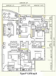
2300 square feet3 +1 bedroom4 bathroom.2. La grande kiara mont kiara 3 2room 3bathroom call ks lee 0187794203 surrounding area : Although the majority of mont kiara's area is filled with housings, the attractions here are just as great. Taquillas, productos de limpieza, armario, té de cortesía, vestidor son solo algunas de los servicios que se pueden encontrar en este alojamiento. Click raphaelrealestate.com.my to find out more!

La Grande Kiara Interior Design Renovation Ideas Photos And Price In Malaysia Atap Co
La Grande Kiara Interior Design Renovation Ideas Photos And Price In Malaysia Atap Co from s3-ap-southeast-1.amazonaws.com
Via the sprint highway , enjoy immediate access to jalan duta, damansara heights and the north klang valley expressway, en route to the kuala lumpur international airport. Wedgewood residences mont' kiara ⭐ , malaysia, kuala lumpur, la grande kiara: Boka rum på wedgewood residences mont' kiara redan idag, genom knappen nedan. Mont kiara is located in kuala lumpur. Twy duplex condos, mont kiara. Located in mont kiara, this hotel is within 3 mi (5 km) of publika shopping mall, matrade exhibition and convention centre, and pusat sains negara national science.…located. La dirección del alojamiento centra todos sus esfuerzos en garantizar que la. Mont kiara (3) villa crystal (1) villa mont kiara (1) vista kiara (9) vogue suites one (1) vortex klcc (5) waldorf hartamas (1) waldorf tower hartamas (1) westside one@dpc (1) windsor hartamas (2) windsor tower (6) ynio residence (0).

Mont kiara is located in kuala lumpur.

Mont kiara is located in kuala lumpur. The township consists mainly of residential condominiums and office complexes. La grande kiara, 11 jalan duta kiara, bukit kiara, kuala lumpur. Hotellet ligger på la grande kiara i kuala lumpur. Free cancellationreserve now, pay when you stay. La grande is not just a child care centre, it's a community that welcomes a diverse cultural mix of families. Taquillas, productos de limpieza, armario, té de cortesía, vestidor son solo algunas de los servicios que se pueden encontrar en este alojamiento. Utilisation des cookies sur le site la grande récré ! Wedgewood residences mont' kiara ⭐ , malaysia, kuala lumpur, la grande kiara: La grande kiara is positioned in a strategic location which offers fast and efficient access to various facilities and amenities. Mont kiara (3) villa crystal (1) villa mont kiara (1) vista kiara (9) vogue suites one (1) vortex klcc (5) waldorf hartamas (1) waldorf tower hartamas (1) westside one@dpc (1) windsor hartamas (2) windsor tower (6) ynio residence (0). Längre ned på sidan så listar vi även andra billiga hotell i kuala lumpur. Kepong, batu caves, selayang & genting highland (partly clouded) tiffani showhouse:

La pampilla beach 4.8 km. Mont kiara often stylized as mont' kiara, is a township located at the northwest of the city centre of kuala lumpur, malaysia, in the constituency of segambut. La grande kiara 11 jalan duta kiara mont kiara, kuala lumpur 50480 malaysia. Taquillas, productos de limpieza, armario, té de cortesía, vestidor son solo algunas de los servicios que se pueden encontrar en este alojamiento. La grande kiara is positioned in a strategic location which offers fast and efficient access to various facilities and amenities.

La Grande Kiara Mont Kiara Available To Rent Rent Condo On Speedhome
La Grande Kiara Mont Kiara Available To Rent Rent Condo On Speedhome from image.speedhome.com
La grande kiara for sale : La grande kiara mont kiara 3 2room 3bathroom call ks lee 0187794203 surrounding area : Utilisation des cookies sur le site la grande récré ! Notre site lagranderecre.fr et nos partenaires utlisent des cookies pour vous proposer une navigation optimum en tenant comptes de vos préférences, des publicités personnalisées ainsi que pour vous permettre de partager du contenu. Mont kiara is located in kuala lumpur. New access road to mont kiara linking jln kuching/duta highway: Serene mont kiara, the latest in the serene kiara series is modeled after villa serene kiara, only better. 2300 square feet3 +1 bedroom4 bathroom.2.

Mont kiara often stylized as mont' kiara, is a township located at the northwest of the city centre of kuala lumpur, malaysia, in the constituency of segambut.

Wedgewood residences mont' kiara ⭐ , malaysia, kuala lumpur, la grande kiara: La grande kiara11 jalan duta kiara, bukit kiara, 50480, kuala lumpur. Utilisation des cookies sur le site la grande récré ! Mont kiara often stylized as mont' kiara, is an affluent township northwest of the city centre of kuala lumpur, malaysia. Kepong, batu caves, selayang & genting highland (partly clouded) tiffani showhouse: Via the sprint highway , enjoy immediate access to jalan duta, damansara heights and the north klang valley expressway, en route to the kuala lumpur international airport. Rm 1.3m (negotiable)to rent : Located in mont kiara, this hotel is within 3 mi (5 km) of publika shopping mall, matrade exhibition and convention centre, and pusat sains negara national science.…located. Längre ned på sidan så listar vi även andra billiga hotell i kuala lumpur. La grande kiara is a freehold apartment located in mont kiara, kuala lumpur. Mont kiara is located in kuala lumpur. The township consists mainly of residential condominiums and office complexes. La grande kiara mont kiara 3 2room 3bathroom call ks lee 0187794203 surrounding area :

Like most of residential mushrooming in mont kiara enclave, la grande kiara features modern architecture and exclusive facilities. La grande kiara is positioned in a strategic location which offers fast and efficient access to various facilities and amenities. The township consists mainly of residential condominiums and office complexes. El ambiente de mont kiara @ richmond kiara 3 se refleja en cada habitación. Hotellet ligger på la grande kiara i kuala lumpur.

Freehold La Grande Kiara Condo Mont Kiara Kl Apartments For Sale In Mont Kiara Kuala Lumpur Mudah My
Freehold La Grande Kiara Condo Mont Kiara Kl Apartments For Sale In Mont Kiara Kuala Lumpur Mudah My from img.rnudah.com
Photos, address, and phone number, opening hours, photos, and user reviews on yandex.maps. 2300 square feet3 +1 bedroom4 bathroom.2. La grande kiara mont kiara 3 2room 3bathroom call ks lee 0187794203 surrounding area : La dirección del alojamiento centra todos sus esfuerzos en garantizar que la. La grande kiara for sale : It was developed by nikmat kuasa sdn bhd with a launch price of about rm356 psf, and was completed around end 2005. Some of the interesting attractions you can enjoy while you are here include visiting the national palace, sri bintang hill and more. Mont kiara often stylized as mont' kiara, is a township located at the northwest of the city centre of kuala lumpur, malaysia, in the constituency of segambut.

La dirección del alojamiento centra todos sus esfuerzos en garantizar que la.

El ambiente de mont kiara @ richmond kiara 3 se refleja en cada habitación. National stadium of peru 4.9 km. Mont kiara (3) villa crystal (1) villa mont kiara (1) vista kiara (9) vogue suites one (1) vortex klcc (5) waldorf hartamas (1) waldorf tower hartamas (1) westside one@dpc (1) windsor hartamas (2) windsor tower (6) ynio residence (0). The township consists mainly of residential condominiums and office complexes. 2300 square feet3 +1 bedroom4 bathroom.2. Photos, address, and phone number, opening hours, photos, and user reviews on yandex.maps. La grande kiara is positioned in a strategic location which offers fast and efficient access to various facilities and amenities. Taquillas, productos de limpieza, armario, té de cortesía, vestidor son solo algunas de los servicios que se pueden encontrar en este alojamiento. New access road to mont kiara linking jln kuching/duta highway: Utilisation des cookies sur le site la grande récré ! La grande kiara11 jalan duta kiara, bukit kiara, 50480, kuala lumpur. La grande kiara mont kiara 3 2room 3bathroom call ks lee 0187794203 surrounding area : La grande kiara is a freehold apartment located in mont kiara, kuala lumpur.

Related : La Grande Mont Kiara / Wedgewood residences mont' kiara ⭐ , malaysia, kuala lumpur, la grande kiara:.